Huurwoning Hoge Rijndijk

Hoge Rijndijk, Leiden

904,-/ mnd (incl)

1
1
1
25
Terug
Leiden
Leiden
Leiden
Leiden
Leiden

Hoge Rijndijk, Leiden

Product information

€904,- / mnd

Description

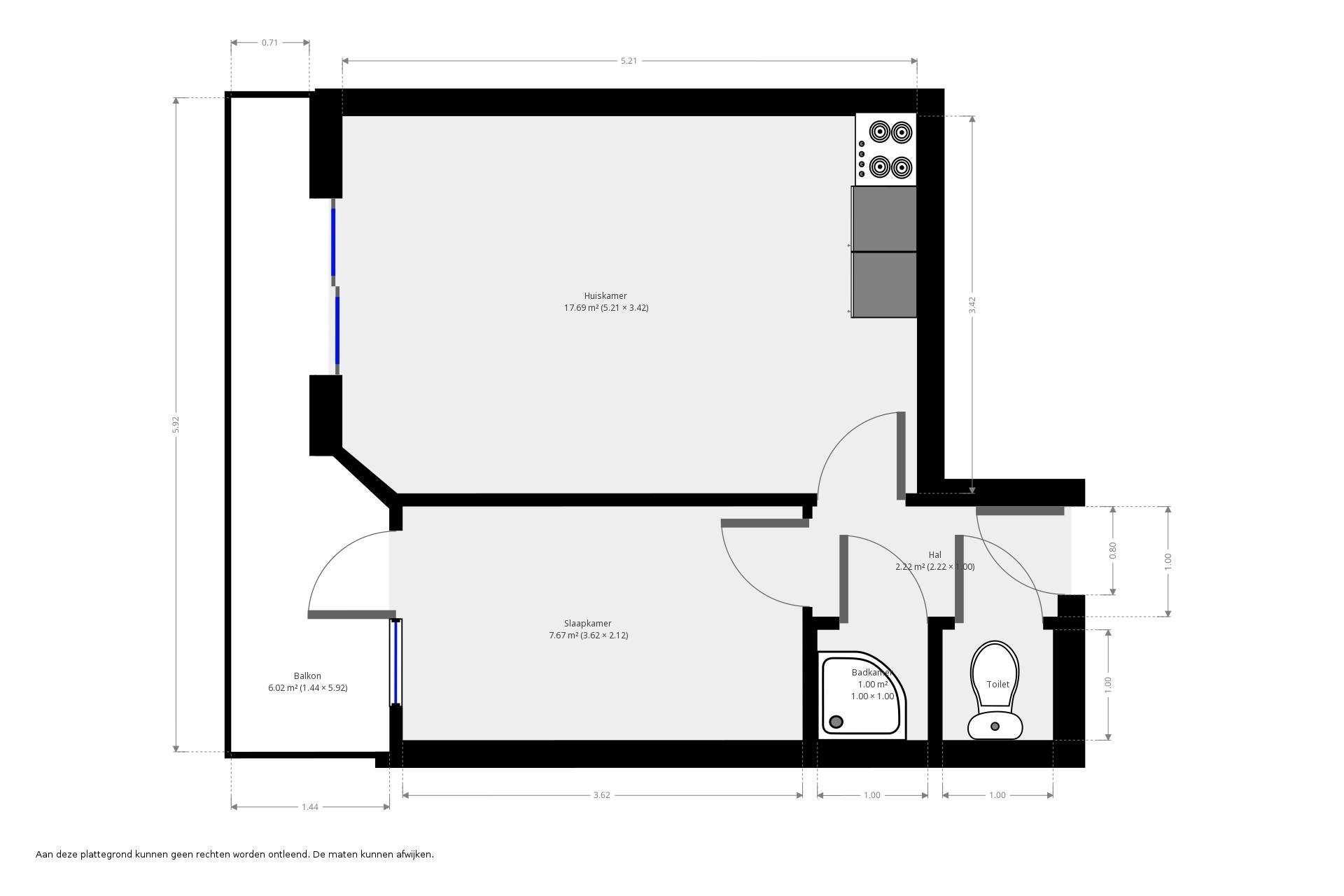
Dit fijne appartement aan de Hoge Rijndijk komt per 1 maart 2026 beschikbaar.

De woning heeft een oppervlakte van 25 m². De woon- en slaapkamer hebben een praktische, rechte indeling, waardoor je de ruimtes efficiënt kunt inrichten en optimaal kunt benutten. Het appartement bevindt zich op de eerste etage, aan de achterzijde van het pand. Je beschikt over een eigen keuken en badkamer. De slaapkamer ligt aan de rechterzijde van de woning en is afgescheiden van het woongedeelte.

Aan de achterzijde van het pand bevindt zich een ruim balkon dat over de volledige breedte van de woning loopt. Het balkon is bereikbaar via de openslaande deuren in de woonkamer én via de slaapkamer. Dankzij de gunstige ligging kun je hier vrijwel de hele dag van de zon genieten.

In een gemeenschappelijke ruimte in het pand kun je gebruikmaken van een gedeelde wasmachine en droger.

Droom jij al een tijd van een eigen plek? Laat het ons dan snel weten!

Lees meer

Aanvullende details